Una casa moderna de estructura de madera en medio de vegetación y árboles.
Cotizar

Casa Bosque

¿Qué incluye este modelo?

  • Set de planos completos aptos para la construcción

  • Especialidades: Cálculo, sanitario

  • Imágenes render exterior e interior

  • Moodboard de interiorismo

  • Distribución del mobiliario

  • Elevaciones 

  • Selección de materiales

  • Esquema de muebles a medida

  • Layout eléctrico.

  • Planos de iluminación

  • Lista de compra de accesorios

  • Desglose estimado del presupuesto final

  • Cronograma estimado

  • Guía de servicios e inversión

  • Kit de bienvenida

// CARACTERÍSTICAS

Modelo arquitectónico de una casa moderna con techos de lámina, paredes de madera y áreas con ventanas grandes, con un patio interior y árboles.

Superficie

130 m2

Dormitorios


3

Baños

Bodega


1


2

Descargar Brochure
Esquema en línea de una casa moderna. Se pueden ver las paredes, ventanas, puertas y techos del diseño arquitectónico.

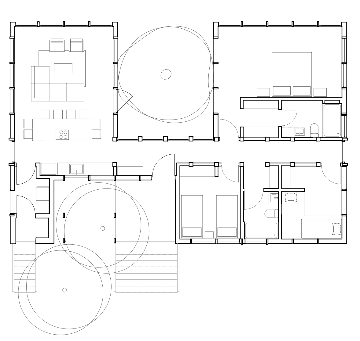
// DISTRIBUCIÓN PLANTA

La Casa Bosque se diseñó de forma eficiente para poderse construir en un corto periodo de tiempo, lo que permitirá construir antes que lleguen los periodos de lluvia.

Dibujo de una casa moderna con muchas ventanas y un árbol en el fondo.

// FUNCIONALIDAD

La Casa Bosque está pensada para climas nublados o terrenos forestales, aprovechando al máximo la luz gracias a su lucarna central. En este espacio luminoso se reúne la familia, conectando el living, comedor y cocina en un lado, mientras las habitaciones quedan más privadas en el otro extremo.

Plano arquitectónico de una casa con varias habitaciones, incluyendo salas, dormitorios, baño y áreas comunes, con árboles y escaleras en el exterior.

Casa Bosque

Todo empieza con una idea. Tal vez quieras comenzar un negocio o convertir un pasatiempo en algo más.

Superficie
130 m2

Año
2025

Una casa moderna con paneles de madera, ventanas grandes y escaleras pequeñas en un entorno natural con árboles y césped.
Casa moderna de madera con grandes ventanas, rodeada de árboles y hierba
Vista aérea de una casa moderna con estructura de madera y techos de metal, rodeada de vegetación y árboles.
Diseño de una casa moderna y minimalista en medio de un entorno natural con árboles y césped, con paredes de vidrio y una estructura principal de madera y metal.
Casa moderna elevada en un entorno boscoso con paredes de madera y ventanas grandes.
Casa moderna de madera con grandes ventanas en un entorno natural con árboles y césped alto.